BV Krusenbusch, Beitrag "Oldenburger Monatszeitung" Juni 2011


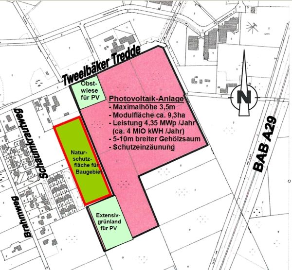
Photovoltaikanlage an der Tweelbäker Tredde

Am 2.Mai wurde in der Grundschule eine "frühzeitige Bürgerbeteiligung" zur Aufstellung eines vorhabensbezogenen Bebauungsplanes (Nr. 33) von der Stadtverwaltung durchgeführt. Eine private Firma beabsichtigt sehr kurzfristig die Herstellung einer etwa 9,3 ha großen Photovoltaikanlage südlich der Tweelbäker Tredde / östlich des Schaumkrautweges. Die Tredde wird nicht befahren; es ist eine dichte Sichtschutzpflanzung sowie eine Obstwiese vorgesehen; zudem wird eine extensive Grünlandfläche eingerichtet. Nach Erteilung der Baugenehmigung soll die Anlage bis Ende Dezember ans Netz gehen. Die öffentliche Auslegung mit der Möglichkeit zur Abgabe von Stellungnahmen erfolgt vom 18.Mai bis 20.Juni im Technischen Rathaus oder im Internet unter http://oldenburg.planungsbeteiligung.de/planfaelle/list.asp .

Bei der Veranstaltung wurde seitens der Teilnehmer angeregt, eine qualifizierte Begutachtung der BAB-Lärmreflektion im Hinblick auf die Beeinträchtigung der angrenzenden Wohnstandorte zu erstellen. Darüber hinaus sollte auf der wohngebietszugewandten Seite aus Sicht- und Lärmschutzgründen eine Erdverwallung hergestellt und mehrjähriges Pflanzgut verwendet werden. Begleitend sollte insbesondere die bereits ausgewiesene naturschutzfachliche Kompensationsfläche für das Baugebiet Schaumkrautweg vorgezogen hergestellt werden, um die Attraktivität dieses Wohngebietes (bzw. der verbliebenen Bauflächen) nicht zu mindern, sondern um somit eine wirksame Abschirmung für das Wohngebiet herzustellen. An dieser Stelle sei allen Betroffenen angeraten, eine entsprechende Stellungnahme abzugeben.



Terminvorschau

3. September: Familienfest 14.30 Uhr auf dem Spielplatz Schafgarbenweg (viele Attraktionen und Spiele für Jung & Alt sowie geselliges Beisammensein bei "Speis & Trank" !!)

8. Oktober: Preis-Kniffelturnier um 19.30 Uhr im Vereinsheim

4. November: Lichterfest ab 17.30 Uhr (Laternenlaufen und anschließend Lagerfeuer am Vereinsheim, Bratwürstchen und Heißgetränke inbegriffen!)


Die nächste öffentliche Bürgervereinssitzung findet am Montag den 20. Juni um 20 Uhr im Vereinsheim auf dem KSV-Sportplatz statt. Alle interessierten MitbürgerInnen sind herzlichst willkommen.


Wolfgang Briem, Schriftführer


Archiv